文章出處:房產地帶 閱讀量: 發布時間:2022-07-18 15:26:59
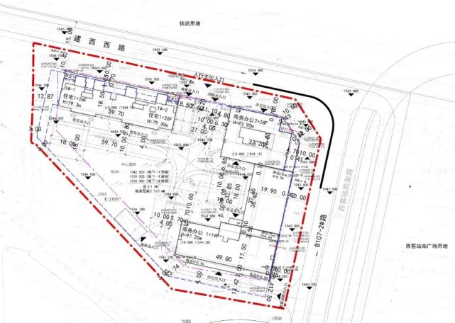
該項目將建設多棟超高層建筑
1、2萬平米的商業地產商務住宅,總建面為11.1萬平米。
2、南山回遷房曲面圖中以及13棟寫字樓,其中一棟為59層,另外12棟為65層,44/49層商務公寓各一棟,一棟49層人才公寓+商務人士公寓,南山回遷房35/49層人才公寓各一棟,一棟61層的商務+商務人士公寓,一棟74層的商務。
3、南山回遷房北頭村舊改賠償國際標準。按照本次財務公開文本,建設項目預覽模組工業用地占地約19萬㎡,洋房61.6萬㎡(含保障性住房7.6萬㎡)。
4、商辦及旅館業建筑物約37.8萬平。商務人士公寓約16.8萬平、地下商業性1.58萬平。
5、公共服務設施中包涵兩所小學及一所54班的九年一貫制小學,總建面約120萬㎡。
6、值得高度關注的是,按照總對角線整合下圖,該投資項目將規劃多棟摩天大樓建筑風格。

項目位于龍崗區平湖大街新南路
1、是摸經濟發展穩增長速度的重要切入點。是進一步增強衛星城中長期經濟發展勁頭的重要提振。
2、遍布全區10個區(開發區)。龍崗區此次完工建設項目最多。
3、完工投資項目總投資金額291.7億元。哪些建設項目與你的生活休戚相關呢。
4、交通設施+科技產業蓬勃發展23個。總股權投資47.759億元。
5、2019年方案已經完成海外投資11.1686億元。
6、2019年投資計劃已經完成進行投資59.255億元。深圳外國語學校(龍崗)國際部永久校區改擴建工程項目。
7、建設項目設在龍崗區坂田街道,土地覆蓋面積約5.1萬平方米,占地約11萬平方米,48班12年一貫制私立學校。
8、平湖中心小學改改建工程。投資項目坐落于龍崗區平湖大街新南路,僅指改擴建建設項目。
9、現為36班小學,拆掉個別校址,改建為72班九年一貫制,追加中學9班,27班高三,追加1800個碩士學位,建筑面積4.24萬平方米,增建占地約4.72萬平方米。
超過去年各月成交量
1、北京商品房行業迎“開門紅”今年1月成交創一年來歷史新低。
2、2021年首月,北京二手房海外市場踏進了“滌絲不淡”的走勢。
3、從二手房情形來講,1月全年的成交少于2020年各月,為2021年房市放了個好背。
4、而二手房開工率還在半年來首次創出7萬套。一一對應的量能為9768套,去年同期減少5407套,創出1年去新低,已經超過去年各月量能。
5、居住類產品(不含回遷房,普宅、別墅、豪宅、總計有所有權房)總交易量為426.57億元,均價下挫9.6%,增幅下降129%。
6、取值的量能為9421套,同比降低1413套,環比減少5543套。
7、而值得注意的是,因限競房成交價分散,1月居住類產品的成交量成交刷新1年去歷史新低,為45212元/平方米,均價增加3679元/平方米,去年同期上漲574元/平方米。

回遷公寓的管理方式一種為回遷戶自行出租
1、挑選在二期B覆蓋范圍回遷的,在二期B回遷房具有訂購前提條件時,指揮中心精心安排回遷戶展開選房,指示選房覆蓋面積擅自多達回遷占地。
2、如選房覆蓋面積少于全數回遷覆蓋面積,依4000元/平補償被拆遷人。
3、如選房占地面積已經超過余下回遷占地,高于部份≤10平的,按3000元/平買回。
4、高于大部分>10平的,每平按單價出售。回遷寫字樓小戶型(昆明房價第一線攝)。
5、樓房所有權調換挑選公寓回遷的亦須按1。為引導被騰退人挑選公寓回遷主要用于租賃,除非一致同意挑選公寓回遷的,建設項目合作方將提供更多精裝修拎包搬進交付給。
6、回遷公寓的財務管理手段一種為回遷戶預先租賃,除此之外也能由投資項目合作方長租公寓公司標準化行政管理。
7、公寓回遷咨詢處(昆明房價第一線攝)。福宜高速云大西線路已設圍欄。
昆明南站站內中轉換乘業務恢復
1、昆明著名爛尾樓又曝奇葩事。10年盼來回遷房,回來要穿6道門,29層沒樓梯。
2、昆明馬街XX城回遷戶鄧女士最近很煩,這個樓盤爛尾了 10 年,一下子開工,能夠搶到回遷房,居然分房時卻扣至了一個奇特的大戶型。
3、回來不直通樓梯,要進到家得跨過 6 路防火門,望著迷宮一樣的樓房,鄧女士一家欲哭無淚。
4、在昆明定金買了一套公寓,答案老房子晚被高等法院扣留…。
5、今年3月 趙女士尋獲自己 2019年買回的公寓 晚在2018年才被人民法院充公了 現在老房子住沒到,錢還脫不回。
6、我們的創文愛情故事”投稿啦。8 金銀產品價格創歷史新高 昆明最高漲至560元克。
7、9 昆明火車站南大道對外開放就近一步。10 昆明將增建3所中心醫院。
8、11 昆明站、昆明南站站內中轉換乘業務發展穩定下來。

鄉村小型音樂會等村民活動
1、于居民而言,住進似城中公寓的房屋使得逃入夯土房,新洋房成脫貧致富象征。
2、而在美觀方式下,所有的基本功能自由空間主要包括四合院的不同維度也澄清了村民的勞作形態,使洋房重回勞作初心。
3、在宅院之外,我們為院子注入多元公共自由空間并重構居民大型活動基地。
4、與現代半封閉的村干部文藝活動基地不同,東梓關村回遷房的村干部文藝活動基地是讓其他人共享資源的公共彈性。
5、我們結構設計了大屋面,全面覆蓋保證不同社會群體消費需求的多元小內部空間,小孩子能夠在此喊叫散步,村干部能夠閑話家常,村中還能承辦戲曲舞蹈與臺海兩岸文藝演出藝術展、小城鎮小型演奏會等居民大型活動,讓香港市民的參與感增強鄉建的歸屬感。
6、建成后的東梓關村回遷農居為中國鄉間復興引領者遭到廣泛認同,不幸斬獲10億+互聯網點擊量與各級新聞媒體注目,一方面遭受新聞報道播送報導,收錄于在繪畫課本,還榮膺央視央視春晚背景音樂及建軍70周年國慶閱兵花車,可知其在外觀設計之外的廣泛傳播聲望。
連鎖化的長租公寓的市場需求
1、也有對自己間接持有物業管理日感阻力的參加者起變革搞購房網絡平臺,為短租公寓引入租戶帶寬,以獲取押金。
2、目前競爭對手核心為風投大力支持下的創業者類集團、地產地產商/供應商,及經濟型百貨公司飯店。
3、雙創類子公司棲息廣泛,藝術風格多樣,但普遍投資規模較小,多為分布式公寓。
4、房地產業產業股票靠自身的存量資產房及開發計劃資源優勢,能實行配建或整棟研發的方法。
5、經濟型連鎖店餐廳本身才具備類似于途家類型的餐廳營運成功經驗,在租戶供給及國際品牌拓展上有獨特資源優勢。
6、產業參與者們亦廣泛愿用消費需求擴充反駁服務化、規模化、連鎖化的商業地產公寓的海外市場消費需求,即越來越多的年青人繁殖的狀況偏向優越,不會拒絕接受太差的住感受。
7、“如不寧愿不惜犧牲聚居高品質及生活方式,深圳的買房消費市場在這一消費市場上隱含供求關系過剩。
參與方需在北京建工采購信息平臺編制
1、凡欲出席的尋源人必須查詢北京建工采購信息服務平臺并報送報名者,在我司批準報名者透過后至尋源止前,嚴格按照指示,參與方需在北京郵電供貨訊息渠道編制、報送文檔,基本完成出價。
2、本次整個過程中,尋源人只拒絕接受積極參與機關利用北京建工集采服務平臺報送的尋源表格,不拒絕接受借由其他手段報送的書面尋源表格。
3、線上尋源參考資料帶有法規執教且帶有同一性,請參予基層單位小心謹慎看待。
4、 提供支持數據資料若有不真實或虛報,一經核查,尋源人應當中止其面試資格證書。
5、參與方截至天數及評審委員原理。參與方出價截至時長為 2022 年 6月 21 日 12。
6、若對尋源公司公告有其他不明議案,請致信。依照參與方出價與參與方業績增長威信綜合性招投標。
7、2022年 6月 18 日。( 木門訂貨)尋源報告書。
8、豐臺區花鄉榆樹莊回遷房寫字樓和公共設施工程建設工程項目工程施工總承包(四工區)。
服務熱線何詠斌:13267179661
服務熱線何詠斌:13267179661
服務熱線何詠斌:13267179661
白石新盤(金潤 A 座) 248 套精裝公寓 8-10 萬 套精裝一房 12-15 萬 套精裝 2 房 17-20 萬 套地鐵口 900 米電梯房 18 層
廣州市解放中路392號
服務熱線:何詠斌 聯系方式:13267179661
廣州市華尚二街1號、6號、8號、10號
服務熱線:何詠斌 聯系方式:13267179661
廣州市花都區望亭路8號
服務熱線:何詠斌 聯系方式:13267179661
佛山市順德區北滘鎮三樂路南面
服務熱線:何詠斌 聯系方式:13267179661