深圳第三中心 投資潛力無可估量龍崗作為深圳第三中心,依托大運新城、中心城、國際低碳城,串聯綠島、公園、水庫的 40 公里“綠環”,形
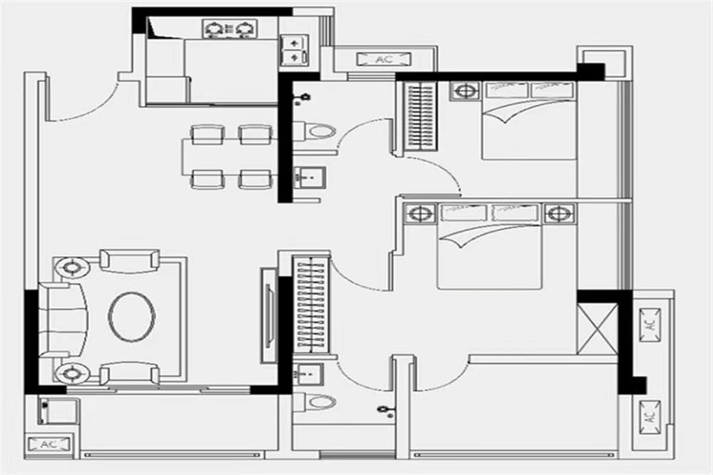
房屋戶型:1室 、2室 、3室 、
住宅類型:
區域:深圳市龍崗區深圳國際低碳城旁,花園路與興華路交匯處
最新開盤:-
立即咨詢
24小時咨詢熱線:13267179661
深圳第三中心 投資潛力無可估量
龍崗作為深圳第三中心,依托大運新城、中心城、國際低碳城,串聯綠島、公園、水庫的 40 公里“綠環”,形成行政、
科教、商務、產業、生態互動融合發展的格局。2020 年胡潤研究 院發布中國最具投資潛力區域百強排行榜中,龍崗區位列
第二,投資潛力無可估量!
? 國際低碳城唯一居住區 東部騰飛首排
深圳國際低碳城以軌道三號線和丁山河生態走廊為紐帶,布局一帶四區,未來將建設程世界級 2.5 產業創智園區和國際
化低碳科技示范城區,擬增加 20 萬就業機會,30 萬精英購房者。利德悅府作為國際低碳城唯一居住區,價值騰飛咫尺眼前!
? 熱點舊改爆發 區域價值蝶變在即
項目周邊匯聚超 35 個大型舊改項目,包含華僑城、恒大、碧桂園、恒裕等優質開發商,各大名企搶先入駐,形成 300 萬
體量的品牌物業黃金增長軸線,區域價值蝶變在即。
? 多維立體交通 用速度聯接繁華
坐擁一城際雙軌道四大道,外環高速開通加成,形成快速路網,通達前海、福田,實現大灣區莞惠深半小時高速生活圈,
讓生活更加高效便捷。
? 人文蘊地一脈傳承 菁英在此長成
百年名校東興外國語、體教結合的拜仁足球學校、項目北側在建坪地高中園、項目旁邊規劃兩所幼兒園+一所初中+一所
九年一貫制學校,未來在家門口即可享受一站式國際化高端教育。
? 逾一億負氧離子包圍 更宜居健康的生活體驗
坪西公園、香沙公園、龍崗濕地公園、松子坑森林公園四大公園環繞 ,原生生活環境純粹,打造更為生態自然的健康有
氧空間,享受生活的絕佳之地。
? ALL-IN 美好生活館 在此遇見美好
香港設計大師陳德堅傾情打造 ALL-IN 美好生活館,包含泊心會所、健身 HOUSE、銀齡俱樂部、美好童夢園四大泛會所,
滿足全齡段休閑需求,讓美好就在樓下。
? 五重歸家禮序 縱享美好休閑空間
移步異景,四季芳華,外攬六園一帶兩水庫+一軸一心四大花園,盡享詩意盛境,打造純粹宜居生活。
? 聘請金地物業顧問 最優質生活服務
項目聘請高端品牌物業金地物業作為物業顧問公司,頂級國際化標準承載專屬歸家禮遇,提供最優質生活服務。 ? 高定美學之作 打造極度舒適臻品住區
面積約 69-105 ㎡臻稀產品,采用圍合式布局,最大化樓宇間距,無密閉的居住體驗,控制建筑高度,降低高層建筑的
壓迫感,打造臻品純住區,居住體驗絕佳。



