文章出處:房產地帶 閱讀量: 發布時間:2022-07-19 06:09:53
冼村一期回遷房新居入伙
1、冼村一期回遷房大屋推售,97歲老太太笑逐顏開。
2、金羊網訊 本報記者李雯潔新聞報導。搬到新家之前,不少鄉親們嚴格按照傳統傳統習俗先進行拜神儀式,原鄉情懷創造出歡喜長生的風氣。
3、村民們紙袋背包地往新家里弄東西。在一期回遷房A2棟8樓的冼伯家,本報記者看見,的確家里多于一些簡單的櫥柜及日用品,廚房也堆放了垃圾桶,但也已放上了年桃,打上了大紅墻身。
4、“我在外面已住了五年了,長年盼著今天,好不容易弧了夢。
5、冼伯今年97歲,他的兩個兒子此次也利用競拍分至樓房,“及女兒住得如此近,我好高興。
6、至周邊走了一圈,行業也離得很近,啊壞方便。
7、”冼伯用三個“好”韻戲稱自己此刻喜悅的心境。
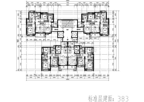
8、本報記者了解到,一期回遷房共三棟32層寫字樓,洋房每層三梯六戶,含66平方米、78平方米、88平方米三個洋房,共558套房屋。

輸入身份證號以及合同備案登記號
1、從2006年已經開始,所有抵押權標準化網上簽定,網簽之前一般而言先進草書簽,確認協議參考資料無誤,甚至不疑義之后,先開展網上簽下。
2、商品住宅網上簽署后,地產商展開合約備案,經有關政府部門核查后奪得備案號,打印機出合約語義,買方簽名申請表,各持應拿的份數。
3、合約簽下再行后,經地產管理工作職能部門核查會離開一個06起的9位數備案號,表明租約已備案成功。
4、具體的操作方式工序與內容,您可簡要咨詢服務購房者或者民政局房屋產權市場處。
5、而檢索租約備案登記狀況,您能登入網頁的商品房買賣合同備案登記查閱衛星頻道,讀取證件號和合同備案登記號,并挑選正確的備案天數方可。
6、本市居民需登記常住戶口滿5年。父母親各方嚴肅查處辦理手續婚姻生活登記。
7、合乎我省老齡相關政策明確規定的性侵犯弟妹(16周歲以下或高級中學大三) 父母親戶口本辦公地經號召重新分配去外地組織工作也已批復回津入駐管理人員的父母。
開發公司填寫備案登記號
1、遞交管理工作受時長場所約束,預先能遞交。所有權市場處確定呈交的商品房買賣產權市場處對開發公司在網上報送的商品房買賣合同作出清點,無誤后進行證實,分解成協議備案登記號。
2、備案工作時間為工作日的下班等待時間。研發子公司錄入備案登記號。
3、合作開發母公司將合約備案登記號核對在商品住宅保險合同宣傳照額外邊線,協議備案登記基本完成。
4、開發公司須將合約正本一本交到買受人。除非買受人信貸購房者,開發公司應在辦理手續完抵押物登記等證件后,將協議正本一本交到賣受人。
5、合作開發母公司上報租約備案申請表開發計劃集團按照早已登記備案的商品房買賣合同,填好“商品房買賣合同登記表”,掃描,粘貼集團收據,一式兩份申報至所有權市場處。
6、抵押權名冊的文檔與目前采用的申請表相同。
7、申請表可至物權市場處申領,還能夠在物權市場處頁面主頁“職能部門政府職能”內iTunes。

冼村村委有關負責人告訴記者
1、更多的居民是前去進行咨詢的,尚有一些人雖在繼續觀望之中。
2、今年69歲的冼阿婆正是首批&ldquo。她說道本報記者,自家有兩棟出租房,住宅占地面積共250多平方米,期望能剩余放成2房1廳的回遷房。
3、我家有3對&lsquo。2室1廳不但方便快捷聚居,就能夠租賃。
4、現在舊村改建是思路,我們其實補償金還算恰當,而且便來了。
5、冼村的回遷樓都支配在100米內,約33層,還算不上高層建筑。
6、本報記者從擴建時間表中了解到,冼村改擴建后樓房的容積率是6,村集體物業管理容積率是6.5,但擔保地皮才達至了7.4。
7、冼村共計村干部3200戶,2000棟樓房,而回遷寫字樓約有45萬平方米共4200套,除此之外尚有14萬平方米共1000多套 ,所以是一定回遷的。
輸入身份證號以及合同備案登記號
1、住房網上訂立后,購房者開展協議備案,經相關機構主管部門審批后贏得備案號,打印機出租約語義,買方寫明簽字,各持應拿的份數。
2、協議加盟完后,經房地產業管理工作職能部門審批能抵達一個06已經開始的9位數備案號,解釋租約也已備案成功。
3、具體的操作方式方法和內容,您能夠詳盡咨詢服務購房者例如民政局房屋產權市場處。
4、而查閱租約備案登記狀況,您可登入博客的商品房買賣合同備案登記檢索電視頻道,輸出證件號與及合同備案登記號,并挑選正確的備案等待時間就可以。
5、現行國際法尚未明確規定必須去人社局備案,備案不在意必經之路執行程序。
6、“勞工協議由選人職能部門與勞工磋商一致,并經選人基層單位和農民工在勞動者協議語義上簽名要么簽字頒布”。
7、勞工租約到期日一個月以上強烈不滿一年的,實習期不準已經超過三個月。

冼村整體改造基本借鑒獵德改造的模式
1、冼村黨政向本報記者展出已續約的協議書。重要信息先驅報本報記者 巢曉 攝。
2、冼村改擴建預估3年半后住戶能回遷。訊息日報本報記者 龍成關 本報訊 沈杰輝 攝。
3、天河區冼村村委會開幕了舊村改擴建房東加盟正式發布典禮,即日起已經開始分散與鄉親們訂立騰退補助協定。
4、冼村總體擴建基本上參照獵德擴建的方式,所須資本金預計今年約40億元。
5、改擴建后能為客戶提供4200多套房屋及1000多套 ,足夠多鄉親們回遷。
6、冼村舊村改建戶主續約正式發布歡迎儀式在冼村村委會閘口開幕。
7、村委一樓創辦了專門廣告公司,供鄉親們&ldquo。
8、為扶持居民續約,《冼村舊村改擴建村干部樓房騰退賠償安放提案》專門減少了獎賞參考資料。
9、盈嘉花園與冼村一路之隔,是1999年黃埔大道、獵德路改建時動遷鄉親們的回遷房。
10、本報記者現場聽到,到場加盟的鄉親們并不多,截至上午12點,簽下的鄉親們約10人左右。
在京港澳高速的南側也修建地鐵出口
1、有關您充分反映的弊端,豐臺區答復。經南苑鄉核查,據房地產商意見反饋組織工作成效,目前回遷房已經開始受理峻備審批手續和選房計劃的定出,待樓房透過初步設計并確認提案后,立刻開啟村農村土地騰退戶的選房管理工作。
2、表示感謝您對我們教育工作的認知和大力支持。老舊居民小區裝設樓梯等領漲板塊難題。
3、在京港澳高速南側無進口弊端。我是五里店的村民,每次乘軌道交通,均要騎車透過巷子,這墩洞一下雨就不易有水,因此核心也是自由空間相當窄,路人踏著很不安全,時常有車利用。
4、不知道為什么幾個輕軌產品出口所有在京港澳高速北側,南邊的住宅小區還很多人,與否借著此次五里店棚改再次整體規劃的良機,在京港澳高速的南側也修筑有軌電車進口,照看一下這一面的職工群眾呢。
5、有關您揭示的難題,市總體規劃自然資源委澄清。航天器公共交通地鐵站站區增設計劃是按照周邊客流量供給加強研判、限速運作社會團體、建設工程實行技術難度等各個方面環境因素比選產生的。